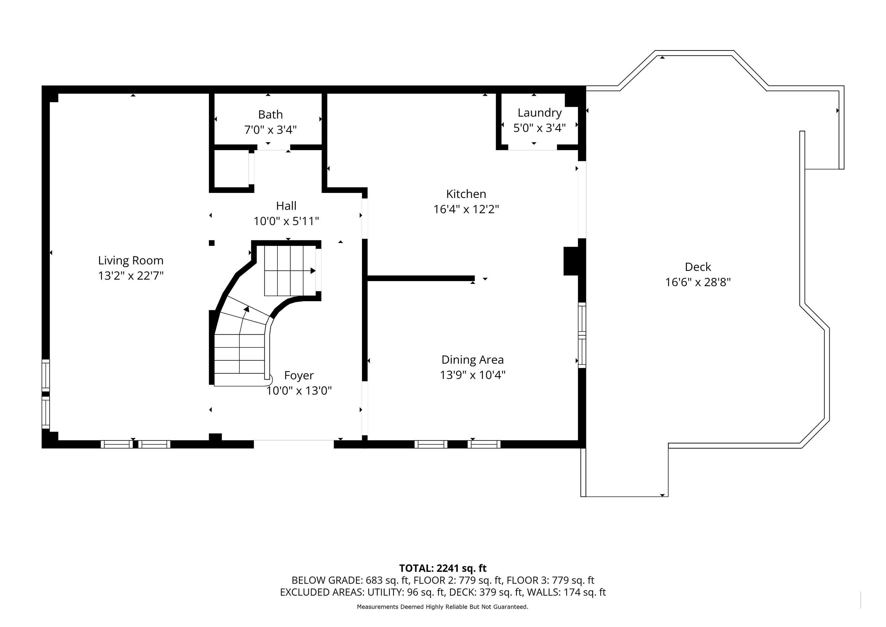
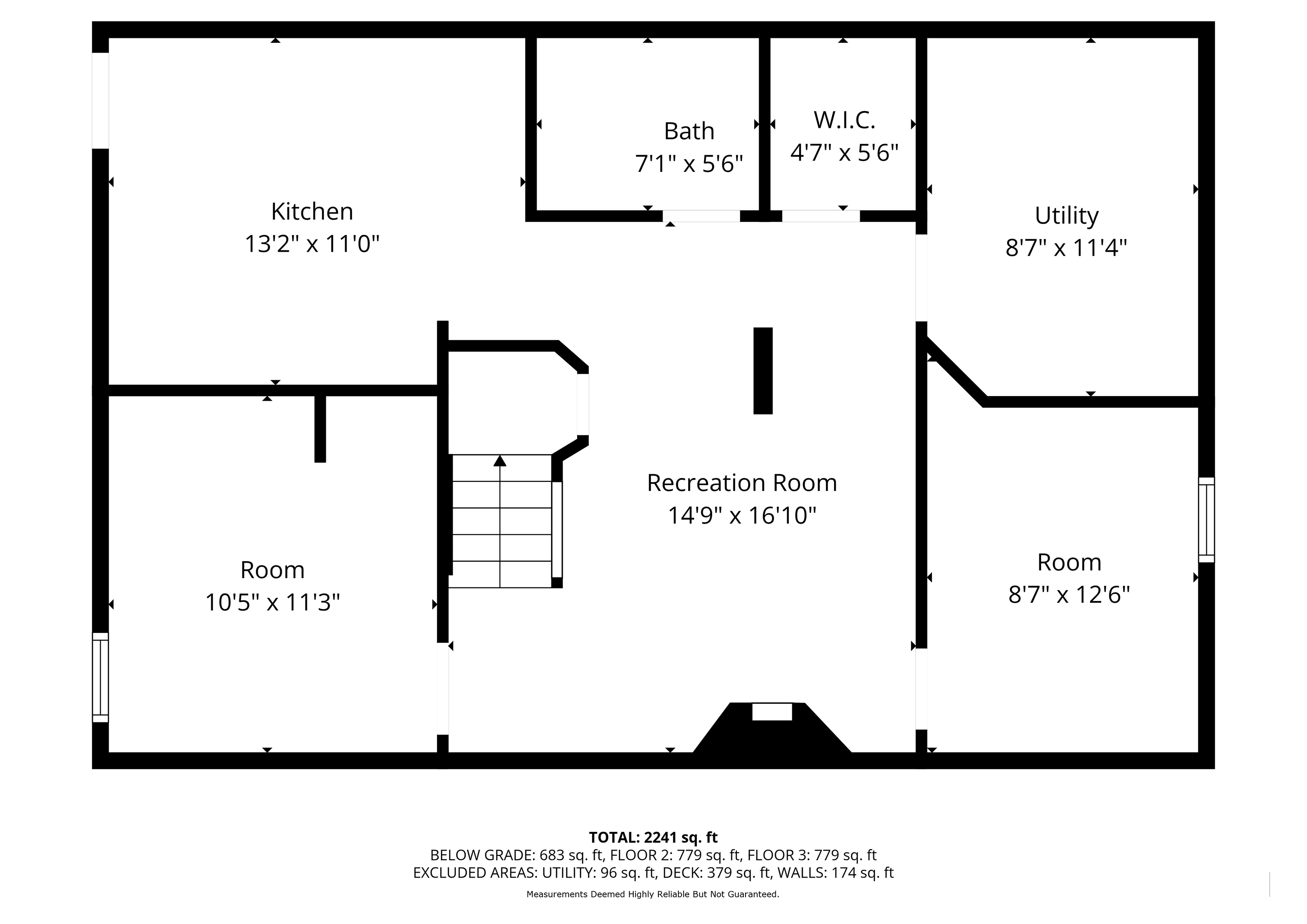
7 Adams Dr, Ajax, ON